Skip to main content

GEELY Showroom, Chevahir Mall, Skopje

Cevahir Mall, Skopje, Macedonia

The Chalet Complex aerial view
Diseño de interiores comerciales para una marca automotriz view root

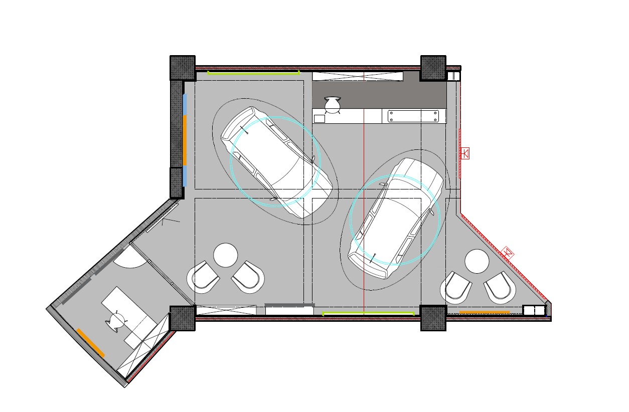
Este showroom representa la identidad de la marca de automóviles Geely, combinando un diseño moderno con una atmósfera refinada e inmersiva. El espacio integra tonos oscuros, texturas de madera cálida y elementos de techo industrial, mientras que la iluminación focal destaca los vehículos como los protagonistas principales. Las estructuras circulares suspendidas y las áreas de exhibición cuidadosamente diseñadas mejoran la experiencia general, creando un entorno dinámico que refleja la innovación y el carácter de los modelos de Geely.

Diseño de interiores comerciales para una marca automotriz view 1
Diseño de interiores comerciales para una marca automotriz view 2
Diseño de interiores comerciales para una marca automotriz view 3
Diseño de interiores comerciales para una marca automotriz view 4
Diseño de interiores comerciales para una marca automotriz view 5